
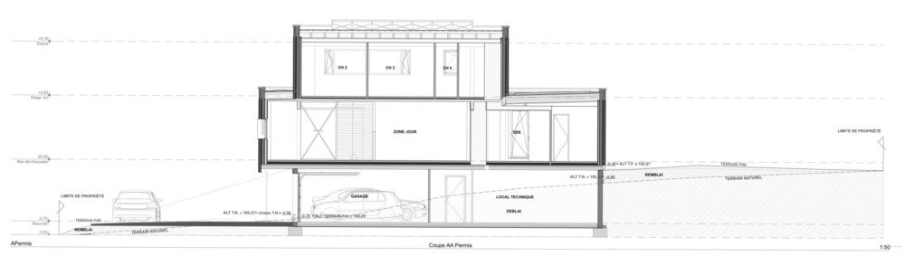
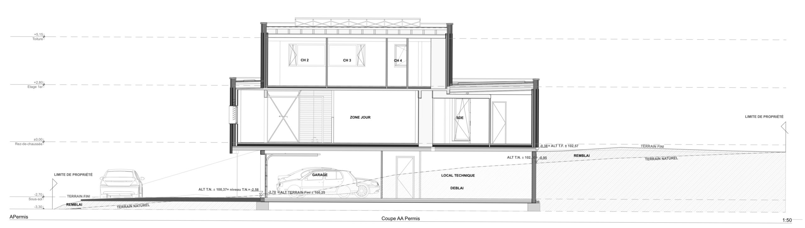
Habitat Individuel – Nommay (25) – 2017
Mission : complète
Objet : maison individuelle neuve
Matériaux de construction : murs préfabriqués de soutènement / socle aggloméré / structure légère bois / Dalle massive (CLT) / structure secondaire acier
Peau du bâtiment : revêtement zinc en cassette / enduits / bardage claire-voie douglas / béton naturel











